The Place For Over 10.000 Popular Download, Design, Music, Anime, Wallpaper, Logo, Image and more.
27+ Perumahan Desain Rumah Minimalis Type 21 Pictures
04/12/2011 00:00
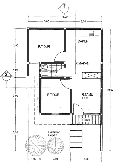
27+ Perumahan Desain Rumah Minimalis Type 21 Pictures. Taman kecil tersebut ukurannya tidak akan melebihi lebih dari 2 m x 2 m. Kali ini akan berbagi desain rumah untuk renovasi atau membangun rumah di perumahan kpr type 21 yang posisi rumah di tengah lahan mulai ukuran 6 x 10 meter ( 60 m2), 6 x 12 m (72 m2), dan 6 x 15 m.
Contoh Gambar dan Desain Rumah Minimalis 1 Lantai ... from dinerbacklot.com
Bentuk desain rumah minimalis tipe 21 yang kecil sangat cocok bagi pasangan muda atau single pekerja yang mempunyai jam kerja tinggi. Sebuah rumah yang enak selalu dikaitkan dengan rumah besar dengan lahan luas dan desain klasik yang megah. Kali ini akan berbagi desain rumah untuk renovasi atau membangun rumah di perumahan kpr type 21 yang posisi rumah di tengah lahan mulai ukuran 6 x 10 meter ( 60 m2), 6 x 12 m (72 m2), dan 6 x 15 m (90.
Rumah akan terlihat lebih nyaman untum ditempati jika.
Rumah akan terlihat lebih nyaman untum ditempati jika. Mengingat rumah model ini memiliki luas yang sangat kecil maka. Masyarakat di dalam kompleks perumahan cenderung individualis. Desain rumah tipe 21 termasuk ke dalam rumah kecil dengan luas 21 meter persegi.